
上海政博公司生产的QBY塑料气动隔膜泵,是一种新型输送机械,该产品具有自吸泵的功能,是目前国内最新颖的一种自吸泵类产品。QBY塑料气动隔膜泵采用压缩空气为动力源,对于各种腐蚀性液体,带颗粒的液体,高粘度、易挥发、易燃、剧毒的液体,均能予以抽光吸尽。其性能参数与联邦德国的 WLLDENPVMPS、美国的MARIOWPUMPS相近.上海政博公司目前已形成系列化生产,共有八种规格直径:¢10mm3/8"、¢15mm1/2"、¢25mm1"、¢40mm11/2"、¢50mm2"、¢65mm21/2"、¢80mm3"、¢100mm4"。按材质和类别可分为:铝合金气动隔膜泵、铸铁气动隔膜泵、QBY塑料气动隔膜泵 、不锈钢气动隔膜泵按性能可分为小型气动隔膜泵、QBY1气动隔膜泵、QBY2气动隔膜泵,QBK气动隔膜泵、第四代气动隔膜泵几种。根据不同液体介质分别采用丁晴橡胶、氯丁橡胶、氟橡胶、聚四氟乙烯。以满足不同用户的需要。自1986年投产以来,QBY塑料气动隔膜泵已被国内一千多家石油、化工、电子、陶纺织系统单位采用,安置在种特殊场合,用来抽送各种常规泵不能抽吸的介质,均取的了满意的效果。
二、上海政博QBY塑料气动隔膜泵主要特点:
1、上海政博QBY塑料气动隔膜泵不需灌引水,吸程高达7m,扬程达50m,出口压力≥6kgf/cm2;
2、流动宽敞通过性能好允许通过最大颗粒直径达10mm。抽送泥浆、杂质时,对泵磨损甚微;
3、上海政博QBY塑料气动隔膜泵扬程、流量可通过气阀开度实现无级调节(气压调节在1-7kgf/cm2之间);
4、无旋转部件,没有轴封,隔膜将抽送的介质与泵的运动部件、工作介质完全隔开,所输送的介质不会向外泄漏。所以抽送有毒、易发挥或腐蚀性介质时,不会造成环境污染和危害人身安全;
5、上海政博QBY塑料气动隔膜泵不必用电,在易燃、易爆场所使用安全可靠;
6、上海政博QBY塑料气动隔膜泵可以浸没在介质中工作;
7、上海政博QBY塑料气动隔膜泵作用方便、工作可靠、开停只需简单地打开和关闭气体阀门,即使由于意外情况而长时间无介质运行或突然停机,泵也不会因此而损坏,不旦超负荷,泵会自动地停机,具有自我保护性能,当负荷恢复正常后,又有自动启动运行;
8、上海政博QBY塑料气动隔膜泵结构简单、易损件少,该泵结构简单,安装、维修方便,泵输送的介质不会接触到配气阀,联杆等运动部件,不象其他类型的泵因转子、活塞、齿轮、叶片等部件的磨损而使性能逐步下降;
9、上海政博QBY塑料气动隔膜泵可输送较粘的液体(粘度在1万厘泊以下);
10、上海政博QBY塑料气动隔膜泵无须用油润滑,即使空转,对泵也无任何影响,这是该隔膜泵一大特点。
三、上海政博QBY塑料气动隔膜泵主要用途:
1、上海政博QBY塑料气动隔膜泵可以吸花生酱、泡菜、土豆泥、小红肠、果酱苹果浆、巧克力等。
2、吸油漆、树胶、颜料。
3、粘合剂和胶水、全部种类可用泵吸取。
4、各种瓦、瓷、砖器及陶器釉浆。
5、油井钻好后,用气动隔膜泵吸沉积物及灌浆。
6、吸各种乳剂和填料。
7、吸各种污水。
8、为油轮,驳船清仓吸取仓内污水。
9、吸啤酒花及发酵粉稀浆、糖浆、糖密。
10、矿井、坑道、隧道、选矿、矿渣中的积水。泵吸水泥灌浆及灰浆。
11、上海政博QBY塑料气动隔膜泵泵吸各种橡胶浆。
12、上海政博QBY塑料气动隔膜泵可以吸各种磨料、腐蚀剂、石油及泥浆、清洗油垢及一般容器。
13、上海政博QBY塑料气动隔膜泵可以吸各种剧毒、易燃、易挥发液体。
14、上海政博QBY塑料气动隔膜泵各种强酸、强碱、强腐蚀液体。
15、吸各种高温液体最高可耐150度。
16、上海政博QBY塑料气动隔膜泵作为各种固液体分离设备的前级送压装置。
四、上海政博QBY塑料气动隔膜泵工作原理:

在上海政博QBY塑料气动隔膜泵的两个对称工作腔中,A腔和B腔中各装有一块有弹性的隔膜,联杆将两块隔膜结成一体,压缩空气从泵的进气接头进入配气阀后,推动两个工作腔内的隔膜片,驱使联杆联接的两块隔膜同步运动。与此同时,另一工作腔中的气体则从隔膜的背后排出泵外。一旦到达行程终点。配气机构则自动地将压缩空气引入另一个工作腔,推动隔膜朝相反方向运动,这样就形成了两个隔膜片的同步往复运动。
在图中压缩空气由入气口进入配气阀,使膜片向右运动,则A室吸力使介质由C入口流入,推开球阀2进入A室,球阀4则因吸入闭锁,B室中的介质则被挤压,推开球阀3由D流出同时使1闭锁,防止回流,就这样循环往复使介质不断从C入口吸入D出口排出。
五、上海政博QBY塑料气动隔膜泵性能参数表:

Note:★-有 have /-无 without
六、上海政博QBY塑料气动隔膜泵主要零件材料:

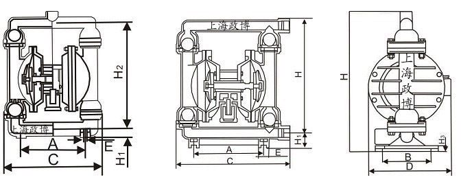
七、上海政博QBY塑料气动隔膜泵主要外型尺寸参数:


法兰端尺寸根据相应的标准设计与生产,也可以根据客户的设计生产。
八、上海政博QBY塑料气动隔膜泵系统连接示意图:

九、上海政博QBY塑料气动隔膜泵订货须知:
一、①产品名称与QBY塑料气动隔膜泵型号,②QBY塑料气动隔膜泵口径,③QBY塑料气动隔膜泵扬程(m),④QBY塑料气动隔膜泵流量,⑤QBY塑料气动隔膜泵吸程(m),⑥QBY塑料气动隔膜泵是否带附件以便我们的为您正确选型。
二、若已经由设计单位选定上海政博公司的QBY塑料气动隔膜泵产品型号,请按QBY塑料气动隔膜泵型号直接向政博公司销售部订购。
三、当使用的场合非常重要或环境比较复杂时,请您尽量提供设计图纸和详细参数,由我们上海政博公司的技术专家为您审核把关。
感谢您访问我们政博公司的网站www.zbpv.com,如有任何QBY塑料气动隔膜泵疑问.您可以致电给我们,我们一定会尽心尽力为您提供优质的服务。
产品相关关键词:
隔膜泵 气动隔膜泵 电动隔膜泵 微型电动隔膜泵 微型高压电动隔膜泵 精小型电动隔膜泵 铸铁电动隔膜泵 铝合金电动隔膜泵 不锈钢电动隔膜泵 衬胶电动隔膜泵 衬氟电动隔膜泵 船用电动隔膜泵 精小型铸铁电动隔膜泵 精小型铝合金电动隔膜泵 精小型不锈钢电动隔膜泵 精小型防爆电动隔膜泵 精小型衬胶电动隔膜泵 精小型衬氟电动隔膜泵 DBY精小型隔膜泵 DBY精小型铸铁隔膜泵 DBY精小型铝合金隔膜泵 DBY精小型不锈钢隔膜泵 DBY精小型衬胶隔膜泵 DBY精小型衬氟隔膜泵 DBY精小型船用隔膜泵 DBY隔膜泵 DBY铸铁隔膜泵 DBY铝合金隔膜泵 DBY不锈钢隔膜泵 DBY衬胶隔膜泵 DBY衬氟隔膜泵 DBY船用隔膜泵 DBY精小型电动隔膜泵 DBY精小型铸铁电动隔膜泵 DBY精小型铝合金电动隔膜泵 DBY精小型不锈钢电动隔膜泵 DBY精小型衬胶电动隔膜泵 DBY精小型衬氟电动隔膜泵 DBY精小型船用电动隔膜泵 DBY电动隔膜泵 DBY铸铁电动隔膜泵 DBY铝合金电动隔膜泵 DBY不锈钢电动隔膜泵 DBY衬胶电动隔膜泵 DBY衬氟电动隔膜泵 DBY船用电动隔膜泵 工程塑料隔膜泵 铸铁隔膜泵 铝合金隔膜泵 不锈钢隔膜泵 塑料隔膜泵 聚丙烯隔膜泵 衬胶隔膜泵 衬氟隔膜泵 船用隔膜泵 气动隔膜泵原理 电动隔膜泵原理 微型电动隔膜泵原理 微型高压电动隔膜泵原理 精小型电动隔膜泵原理 DP微型电动隔膜泵原理 DP微型高压电动隔膜泵原理 DBY精小型电动隔膜泵原理 精小型防爆电动隔膜泵 DBY精小型防爆电动隔膜泵原理 QBY气动隔膜泵原理 DBY电动隔膜泵原理 防爆电动隔膜泵 DBY防爆电动隔膜泵 铸铁气动隔膜泵 铝合金气动隔膜泵 不锈钢气动隔膜泵 工程塑料气动隔膜泵 塑料气动隔膜泵 聚丙烯气动隔膜泵 衬胶气动隔膜泵 衬氟气动隔膜泵 船用气动隔膜泵 第三代气动隔膜泵 第四代气动隔膜泵 QBY隔膜泵 QBY铸铁隔膜泵 QBY铝合金隔膜泵 QBY不锈钢隔膜泵QBY工程塑料隔膜泵 QBY塑料隔膜泵 QBY聚丙烯隔膜泵 QBY衬胶隔膜泵 QBY衬氟隔膜泵 QBY船用隔膜泵 ZBQ隔膜泵 ZBD隔膜泵 ZBQ气动隔膜泵 ZBD电动隔膜泵QBY气动隔膜泵 QBY铸铁气动隔膜泵 QBY铝合金气动隔膜泵 QBY不锈钢气动隔膜泵 QBY工程塑料气动隔膜泵 QBY塑料气动隔膜泵 QBY聚丙烯气动隔膜泵 QBY衬胶气动隔膜泵 QBY衬氟气动隔膜泵 QBY船用气动隔膜泵 QBK隔膜泵 QBK铸铁气动隔膜泵 QBK铝合金隔膜泵 QBK不锈钢隔膜泵 QBK工程塑料隔膜泵QBK塑料隔膜泵 QBK聚丙烯隔膜泵 QBK衬胶隔膜泵 QBK衬氟隔膜泵 QBK船用隔膜泵 ZBQK隔膜泵 QBK气动隔膜泵 QBK铸铁气动隔膜泵 QBK铝合金气动隔膜泵 QBK不锈钢气动隔膜泵 QBK工程塑料气动隔膜泵 QBK塑料气动隔膜泵 QBK聚丙烯气动隔膜泵 QBK衬胶气动隔膜泵 QBK衬氟气动隔膜泵 QBK船用气动隔膜泵 DP微型高压电动隔膜泵
QBY-15 QBY-25 QBY1-32 QBY-40 QBY-50 QBY-65 QBY-80 QBY-100
QBY1-15 QBY1-25 QBY1-32 QBY1-40 QBY1-50 QBY1-65 QBY1-80 QBY1-100
QBY2-15 QBY2-25 QBY2-32 QBY2-40 QBY2-50 QBY2-65 QBY2-80 QBY2-100
QBK-15 QBK-25 ZBQK-32 QBK-40 QBK-50 QBK-65 QBK-80 QBK-100
ZBQK-15 ZBQK-25 ZBQK-32 ZBQK-40 ZBQK-50 ZBQK-60 ZBQK-80 ZBQK-100

